【2〜3棟目 #56】新築を建てる 当初予定→打合せ結果 でどう変わったか 内装5選
blog
前回に引き続き本編でお伝えしきれなかった細かい仕様変更について
今回は内装編です
前回の記事はこちら

【2〜3棟目 #55】新築を建てる 当初予定→打合せ結果 でどう変わったか 外観5選
↑前回のお話
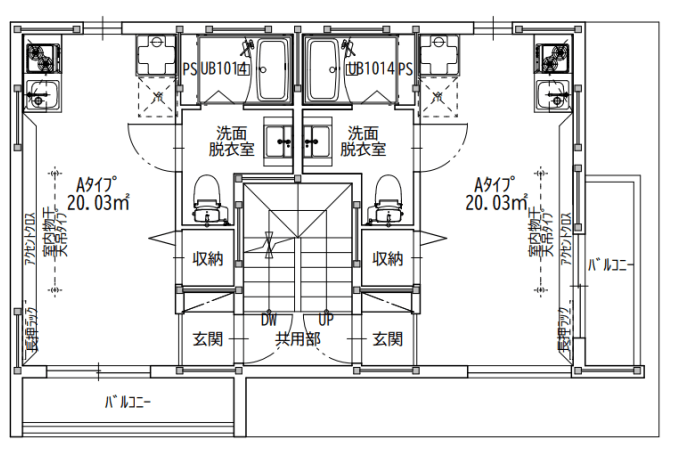
最終的に内装はこんな感じになりました


基本、容積や建蔽は元々めいいっぱいなので
部屋の形を変えることはできませんでした
なので変更できるところは
設備の有無と配置となります
既にお伝えした、小型手洗いとお化粧スペースの変更以外の
変更点は5つ

【2〜3棟目 #35】独立洗面台は本当に必要なの?
↑小型手洗い機とお化粧スペースのはなしはこちら
a ,洗濯物干しワイヤーの変更
初期仕様は↓のような天井からつるタイプのものでした

天井に何か突起物がでるのは
避けたいと思ったので一棟目のとき同様
サンワカンパニー製の物干しワイヤーに
変えてもらいました

【1〜2棟目 #87】物干しワイヤーというインテリア
↑物干しワイヤーについてはこちら
b ,キッチンガスコンロを2口に増やす
単身用マンションでは
料理をしない人も一定するいるので
経費削減と省スペース化を狙って
キッチンのコンロを1口にするケースが多いです
ですが、実際に料理をする立場からすれば
コンロひとくちは料理ができないも同然
ということで2口に変更しています
c ,収納スペースの扉を撤去
少しでも部屋を広く見せたいのと
余計な部品は少しでも削って経費削減
あと、クローゼットをこだわりたい人からすれば
空間だけ空けて、後のレイアウトは任せた方が
自由度が増すと思って扉を無くしました
d ,独立洗面台の収納撤去

既製品の独立洗面を辞めて
木の板に洗面器だけを
乗せるスタイルに変えました
横と下のスペースを空けることで
収納するものを設置するも良し
そのまま使うも良しと入居者さんにとって
自由度が高い形にしました
e ,対面キッチン用のテーブルの追加

独立洗面台を設置した仕様の部屋では
化粧スペースを作る必要がありません
ということで元々化粧スペース用にあった
木のテーブルをキッチンにつけて
簡易テーブル代わりにしました
外観のときの変更もそうですが
少しでもシンプルで
でも使い勝手の良い
おしゃれなマンションを目指しました
こうしていよいよ建物のデザインが終わりました
次の記事はこちら

【2〜3棟目 #57】ネット無料はスッキリでいきたいのです
プロフィール





